
Valve Finder
Strangregulierventile, Edelstahl
Serie 248, Pressverbindungen/Pressverbindungen, EN (DIN), reduzierter Durchgang, DN 15-50, PN 16

DN 15-50
Werkstoffe
| Gehäuse | DN 15-50: Edelstahl, X2CrNiMo17-12-2 (1.4404) |
| Kugel | DN 15-50: Edelstahl, X2CrNiMo17-12-2 (1.4404), Leitrohr aus Komposit |
| Dichtung der Kugel | DN 15-50: PTFE+C |
| Spindel | DN 15-50: Edelstahl, X2CrNiMo17-12-2 (1.4404) |
| Dichtung der Spindel | DN 15-50: FPM/NBR |
| Messnippel | DN 15-50: Selbsthemmend, Edelstahl, X2CrNiMo17-12-2 (1.4404) / EPDM |
O-Ring der Pressverbindung (LBP) DN 15-50 : CIIR
Befestigungen
| Pressverbindungen/Pressverbindungen, EN (DIN) |
Betätigung
| DN 15-50 | Durchflusssteuerung |
Betriebsbedingungen
| Temperatur | -20 °C - +120 °C |
| Leckrate | A (EN 12266-1) |
Unter -20 °C Hersteller kontaktieren. Niedrigste, erlaubte Umgebungstemperatur -40 °C.

DN 15-50
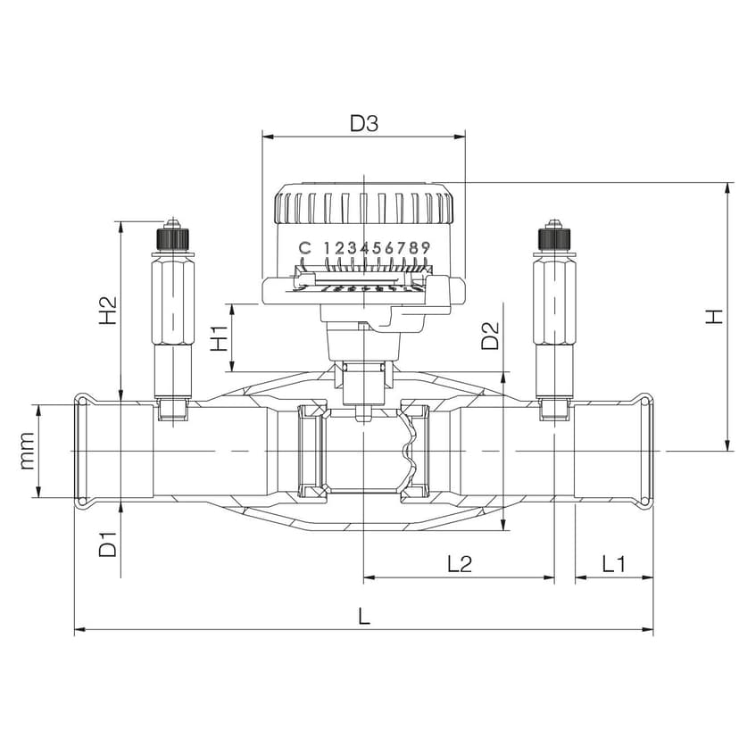
Abmessungen
DN 15-50

DN 15-50
| DN | PN | Produktnr. | D1 | D2 | D3 | H | H1 | H2 | L | L1 | L2 | Kg |
|---|---|---|---|---|---|---|---|---|---|---|---|---|
| 15 | 16 | 248015X | 21.3 | 33.7 | 77 | 100 | 37.0 | 68 | 230 | 20.0 | 72 | 0.9 |
| 20 | 16 | 248020X | 25.3 | 42.4 | 77 | 106 | 38.0 | 69 | 236 | 21.0 | 72 | 1.0 |
| 25 | 16 | 248025X | 31.3 | 48.3 | 77 | 106 | 36.0 | 69 | 230 | 23.0 | 72 | 1.2 |
| 32 | 16 | 248032X | 38.4 | 60.3 | 77 | 110 | 34.0 | 69 | 230 | 26.0 | 72 | 1.5 |
| 40 | 16 | 248040X | 45.4 | 70.0 | 77 | 115 | 36.0 | 69 | 250 | 30.0 | 72 | 1.8 |
| 50 | 16 | 248050X | 57.5 | 76.1 | 77 | 122 | 38.0 | 69 | 250 | 35.0 | 72 | 2.5 |
Die Strangregulierventilen ist u. a. in den Bibliotheken der TA-SCOPE- und Smart- Balancing-Messgeräte verzeichnet.
Produktnummernkonvertierungen
| Produktnr. | LVI | RSK |
|---|---|---|
| 248015X | 4011630 | 4883150 |
| 248020X | 4011631 | 4883151 |
| 248025X | 4011632 | 4883152 |
| 248032X | 4011633 | 4883153 |
| 248040X | 4011634 | 4883154 |
| 248050X | 4011635 | 4883155 |
Technische Unterlagen zum Produkt
Betriebshandbuch


Kv Value Chart Of Vexve Floating Ball Valves
PDF
Balancing valves adjustment instructions DN 15–150
PDF
Balancing valves adjustment Instructions DN 200–400
PDF
Strangregulierventile, Stahl und Edelstahl Montage-, Betriebs- und Wartungshandbuch
PDF
Vexve Ball Valves Operating Torques EN
PDF
Vexve X shut-off and balancing valves instructions for installation, operation, adjustment and maintenance
PDF