
Valve Finder
Steel ball valve
Série 100/S, welding / welding, EN (DIN), reduced bore, DN 20-200, PN 25-40

DN 20-50
Materials
| Tělo | DN 20-200: Steel, P235GH (1.0345) |
| Koule | DN 20-200: Stainless steel, X5CrNi18-10 (1.4301) |
| Těsnění koule | DN 20-200: PTFE+C |
| Vřeteno | DN 20-100: Stainless steel, X8CrNiS18-9 (1.4305) DN 125-150: Stainless steel, X17CrNi16-2 (1.4057) DN 200: Stainless steel, X8CrNiS18-9 (1.4305) |
| Těsnění vřetena | DN 20-200: FPM |
Připojení
| welding / welding, EN (DIN) |
Ovládání
| DN 20-50 | composite handle |
| DN 65-200 | zinc-plated steel handle |
Provozní podmínky
| Teplota | -20 °C - +200 °C |
| Třída těsnosti | A (EN 12266-1) |
Below -20 °C contact manufacturer. Lowest allowed ambient temperature -40 °C.

DN 20-200
Oblast vody
Oblast páry (není povoleno)
Krátkodobá provozní oblast
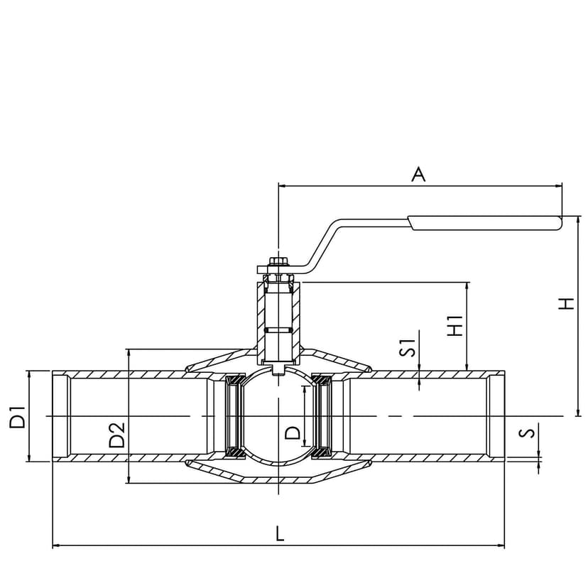
Rozměry
DN 20-200

DN 20-50

DN 65-150

DN 200
| DN | PN | Produktové číslo | A | D | D1 | D2 | D3 | H | H1 | L | S | S1 | Kg |
|---|---|---|---|---|---|---|---|---|---|---|---|---|---|
| 20 | 40 | 100020X/S | 130.0 | 20.0 | 26.9 | 48.3 | 32 | 125 | 86.0 | 230 | 2.6 | 4.5 | 1.2 |
| 25 | 40 | 100025X/S | 130.0 | 20.0 | 33.7 | 48.3 | 32 | 125 | 86.0 | 230 | 2.6 | 4.5 | 1.2 |
| 32 | 40 | 100032X/S | 130.0 | 25.0 | 42.4 | 60.3 | 32 | 129 | 85.0 | 260 | 2.6 | 3.6 | 1.4 |
| 40 | 40 | 100040X/S | 130.0 | 32.0 | 48.3 | 70.0 | 32 | 133 | 87.0 | 260 | 2.6 | 4.5 | 2.0 |
| 50 | 40 | 100050X/S | 130.0 | 40.0 | 60.3 | 88.9 | 32 | 141 | 88.0 | 300 | 2.9 | 4.0 | 3.0 |
| 65 | 25 | 100065/S | 280.0 | 50.0 | 76.1 | 101.6 | 159 | 62.0 | 300 | 2.9 | 5.0 | 5.0 | |
| 80 | 25 | 100080/S | 280.0 | 65.0 | 88.9 | 121.0 | 171 | 68.0 | 300 | 3.2 | 5.6 | 6.5 | |
| 100 | 25 | 100100/S | 280.0 | 80.0 | 114.3 | 139.7 | 216 | 101.0 | 325 | 3.6 | 6.3 | 10.4 | |
| 125 | 25 | 100125/S | 400.0 | 100.0 | 139.7 | 177.8 | 253 | 101.0 | 325 | 4.0 | 6.3 | 14.0 | |
| 150 | 25 | 100150/S | 400.0 | 125.0 | 168.3 | 219.1 | 272 | 107.0 | 350 | 4.1 | 7.1 | 22.0 | |
| 200 | 25 | 100200/S | 870.0 | 150.0 | 219.1 | 273.0 | 281 | 92.0 | 400 | 4.5 | 7.1 | 43.0 |
Převodník čísel produktů
| Produktové číslo | Staré číslo Naval | EAN | LVI | RSK |
|---|---|---|---|---|
| 100020X/S | 6430079560176 | 3755712 | 5495303 | |
| 100025X/S | 6430079560183 | 3755713 | 5495304 | |
| 100032X/S | 6430079560190 | 3755714 | 5495305 | |
| 100040X/S | 6430079560206 | 3755715 | 5495306 | |
| 100050X/S | 6430079560213 | 3755716 | 5495307 | |
| 100065/S | 254410 | 6415837553461 | 3755346 | 4512245 |
| 100080/S | 254411 | 6415837553478 | 3755347 | 4512246 |
| 100100/S | 254412 | 6415837553485 | 3755348 | 4512247 |
| 100125/S | 254413 | 6415837553492 | 3755349 | 4512248 |
| 100150/S | 254414 | 6415837553508 | 3755350 | 4512249 |
| 100200/S | 254416 | 6415837553515 | 3755351 | 4512250 |
Technická dokumentace produktu
Certificates


EPD HUB 2146 VexveSteelBallValves 2024 12 17
PDF
Operation manuals




