
Kv Value Chart Of Vexve Floating Ball Valves
PDF
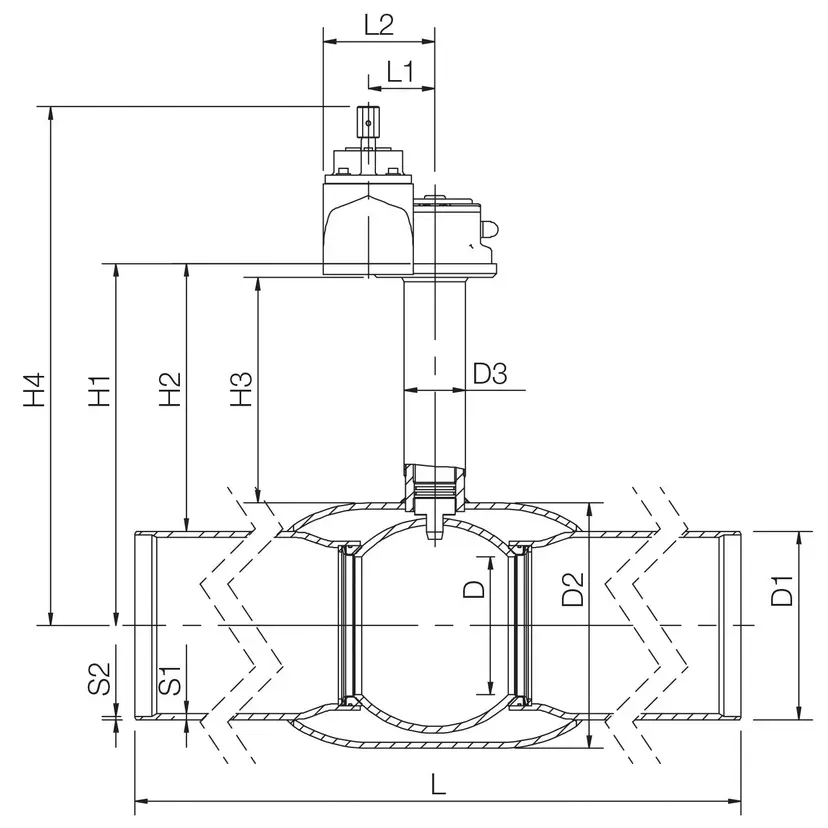
Série 107/SL/HG, welding / welding, EN (DIN), reduced bore, DN 200-300, PN 25

| Tělo | DN 200-300: Steel, P235GH (1.0345) |
| Koule | DN 200-300: Stainless steel, X5CrNi18-10 (1.4301) |
| Těsnění koule | DN 200-300: PTFE+C |
| Vřeteno | DN 200-300: Stainless steel, X8CrNiS18-9 (1.4305) |
| Těsnění vřetena | DN 200-300: FPM |
| Hlava vřetena | DN 200-300: Stainless steel, X5CrNi18-10 (1.4301) |
| welding / welding, EN (DIN) |
| DN 200-300 | valves are available with angle gear standard hexagon adapter 27 or 32 mm |
| Teplota | -20 °C - +200 °C |
| Třída těsnosti | A (EN 12266-1) |
Below -20 °C contact manufacturer. Lowest allowed ambient temperature -40 °C.



| DN | PN | Produktové číslo | D | D1 | D2 | D3 | H1 | H2 | H3 | H4 | L | L1 | L2 | S1 | S2 | W1 | W2 | Kg |
|---|---|---|---|---|---|---|---|---|---|---|---|---|---|---|---|---|---|---|
| 200 | 25 | 107200/SL/HG | 150.0 | 219.1 | 273.0 | 76.1 | 489.0 | 380 | 334 | 712 | 1500 | 84.0 | 149 | 7.1 | 4.5 | 81 | 198 | 108 |
| 250 | 25 | 107250/SL/HG | 200.0 | 273.0 | 355.6 | 88.9 | 525.0 | 389 | 327 | 765 | 1500 | 97.0 | 162 | 8.8 | 5.0 | 90 | 208 | 155 |
| 300 | 25 | 107300/SE/HG | 250.0 | 323.9 | 457.0 | 101.6 | 580.0 | 418 | 331 | 809 | 1800 | 138.0 | 222 | 8.8 | 5.6 | 141 | 235 | 235 |
| Produktové číslo | Staré číslo Naval |
|---|---|
| 107200/SL/HG | 28481650 |
| 107250/SL/HG | 28481750 |
| 107300/SE/HG | 28481850 |



