

DN 15-50
Materials
| Tělo | DN 15-400: Steel, P235GH (1.0345) |
| Koule | DN 15-50: Stainless steel, X5CrNi18-10 (1.4301), flowtube composite DN 65-400: Stainless steel, X5CrNi18-10 (1.4301) |
| Těsnění koule | DN 15-400: PTFE+GF |
| Vřeteno | DN 15-100: Stainless steel, X8CrNiS18-9 (1.4305) DN 125-150: Stainless steel, X17CrNi16-2 (1.4057) DN 200-400: Stainless steel, X8CrNiS18-9 (1.4305) |
| Těsnění vřetena | DN 15-400: FPM |
| Measuring block | DN 15-400: Self-sealing, brass / EPDM |
Připojení
| flange / flange | EN 1092-1 Available PN 10, 16, 25, 40 |
Ovládání
| DN 15-50 | control knob |
| DN 65-150 | zinc-plated steel handle |
| DN 200-400 | manual gear |
Provozní podmínky
| Teplota | -20 °C - +200 °C |
| Třída těsnosti | A (EN 12266-1) |
DN 15–50: -20 °C – +120 °C. Below -20℃ contact manufacturer. Lowest allowed ambient temperature -40℃.

DN 15-50

DN 65-400
Oblast vody
Oblast páry (není povoleno)
Krátkodobá provozní oblast
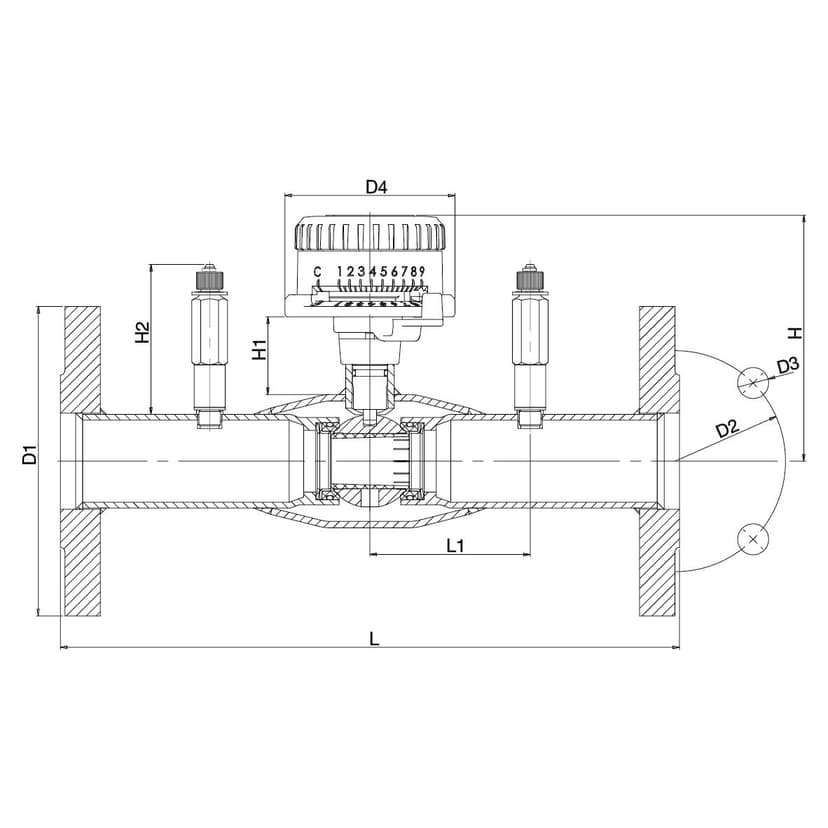
Rozměry
DN 15-400

DN 15-50

DN 65-150

DN 200-300

DN 200-300

DN 350-400

DN 350-400
| DN | PN | Produktové číslo | A | B | C | D | D1 | D2 | D3 | D4 | E | H | H1 | H2 | L | L1 | Kg |
|---|---|---|---|---|---|---|---|---|---|---|---|---|---|---|---|---|---|
| 15 | 25 | 143015X | 95 | 65 | 14 | 77 | 101 | 38.5 | 68 | 250 | 73.0 | 2.0 | |||||
| 20 | 25 | 143020X | 105 | 75 | 14 | 77 | 105 | 38.0 | 68 | 250 | 73.0 | 2.8 | |||||
| 25 | 25 | 143025X | 115 | 85 | 14 | 77 | 107 | 37.0 | 68 | 240 | 73.0 | 3.1 | |||||
| 32 | 25 | 143032X | 140 | 100 | 18 | 77 | 111 | 35.0 | 68 | 280 | 73.0 | 4.9 | |||||
| 40 | 25 | 143040X | 150 | 110 | 18 | 77 | 116 | 35.0 | 68 | 270 | 73.0 | 5.4 | |||||
| 50 | 25 | 143050X | 165 | 125 | 18 | 77 | 123 | 39.0 | 68 | 310 | 73.0 | 7.2 | |||||
| 65 | 16 | 143065 | 280.0 | 185 | 145 | 18 | 160 | 58.0 | 108 | 310 | 110.0 | 10.5 | |||||
| 80 | 16 | 143080 | 280.0 | 200 | 160 | 18 | 173 | 64.0 | 108 | 310 | 110.0 | 12.6 | |||||
| 100 | 16 | 143100 | 280.0 | 220 | 180 | 18 | 219 | 98.0 | 132 | 350 | 122.5 | 17.5 | |||||
| 125 | 16 | 143125 | 400.0 | 250 | 210 | 18 | 253 | 100.0 | 130 | 360 | 137.5 | 26.1 | |||||
| 150 | 16 | 143150 | 600.0 | 285 | 240 | 22 | 276 | 110.0 | 131 | 370 | 150.0 | 34.6 | |||||
| 200 | 16 | 143200 | 268.0 | 244 | 69 | 340 | 295 | 22 | 250 | 293 | 72.0 | 126 | 425 | 198.0 | 61.0 | ||
| 250 | 16 | 143250 | 301.0 | 294 | 97 | 405 | 355 | 26 | 300 | 345 | 88.0 | 132 | 550 | 259.0 | 116.0 | ||
| 300 | 16 | 143300 | 424.0 | 349 | 138 | 460 | 410 | 26 | 600 | 422 | 112.0 | 134 | 580 | 272.0 | 163.0 | ||
| 350 | 16 | 143350 | 424.0 | 424 | 138 | 290.0 | 520 | 470 | 26 | 600 | 498 | 192.0 | 148 | 706 | 333.5 | 275.0 | |
| 400 | 16 | 143400 | 440.0 | 500 | 138 | 340.0 | 580 | 525 | 30 | 500 | 573 | 242.0 | 152 | 810 | 384.0 | 382.0 |
Vexve's balancing valves can be found e.g. from libraries of TA-SCOPE and SmartBalancing measuring devices.
Převodník čísel produktů
| Produktové číslo | Staré číslo Naval | EAN | LVI | RSK | NRF |
|---|---|---|---|---|---|
| 143015X | 6415840426707 | 4042670 | 5495197 | 5599369 | |
| 143020X | 6415840426714 | 4042671 | 5495198 | 5599371 | |
| 143025X | 6415840426721 | 4042672 | 5495199 | 5599372 | |
| 143032X | 6415840426738 | 4042673 | 5495200 | 5599373 | |
| 143040X | 6415840426745 | 4042674 | 5495201 | 5599374 | |
| 143050X | 6415840426752 | 4042675 | 5495202 | 5599375 | |
| 143065 | 265510V | 6415840183631 | 4018363 | 4891327 | 5599248 |
| 143080 | 265511V | 6415840183648 | 4018364 | 4891328 | 5599249 |
| 143100 | 265512V | 6415840183679 | 4018367 | 4891329 | 5599251 |
| 143125 | 265513V | 6415840183686 | 4018368 | 4891330 | 5599252 |
| 143150 | 265514V | 6415840183693 | 4018369 | 4891331 | 5599253 |
| 143200 | 265536V | 6415840183709 | 4018370 | 4891332 | 5599254 |
| 143250 | 265537V | 6415840183716 | 4018371 | 4891333 | 5599255 |
| 143300 | 265538V | 6415840183808 | 4018380 | 4891334 | 5599256 |
| 143350 | |||||
| 143400 | 265539 | 6415840116486 |
Technická dokumentace produktu
Operation manuals


Technical information of flanges
PDF
Balancing valves adjustment instructions DN 15–150
PDF
Balancing valves adjustment Instructions DN 200–400
PDF
Balancing valves, steel and stainless steel Installation, operation and maintenance manual
PDF
X-series valves, coupling dimensions
PDF
Vexve X shut-off and balancing valves instructions for installation, operation, adjustment and maintenance
PDF