
Kv Value Chart Of Vexve Floating Ball Valves
PDF
Série 157/40/S/TR, welding / welding, EN (DIN), full bore, DN 150-400, PN 40

| Tělo | DN 150-400: Steel, P355QH (1.0571) / P355NL1 (1.0566) / P355NH (1.0565) |
| Koule | DN 150-400: Steel + stainless plating, ASTM A350 LF2 +Ni |
| Těsnění koule | DN 150-400: PTFE+C |
| Vřeteno | DN 150-400: Stainless steel, X17CrNi16-2 (1.4057) |
| Těsnění vřetena | DN 150-400: FPM |
| Hlava vřetena | DN 150-400: Stainless steel, X5CrNi18-10 (1.4301) |
| welding / welding, EN (DIN) |
DN 150-400 are equipped with: lifting lugs, mounting stand |
| DN 150-400 | available with portable planet gear |
We recommend angle gear operation for sizes DN 150 and larger.
| Teplota | 0 °C - +200 °C |
| Třída těsnosti | A (EN 12266-1) |
Below 0 °C contact manufacturer. Lowest allowed ambient temperature -20 °C.



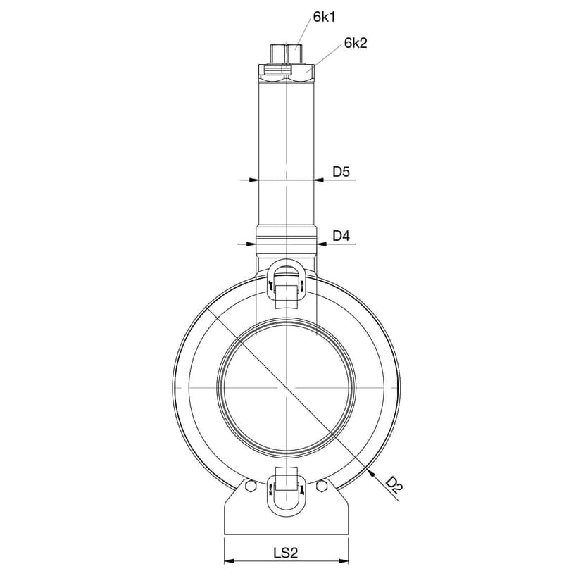
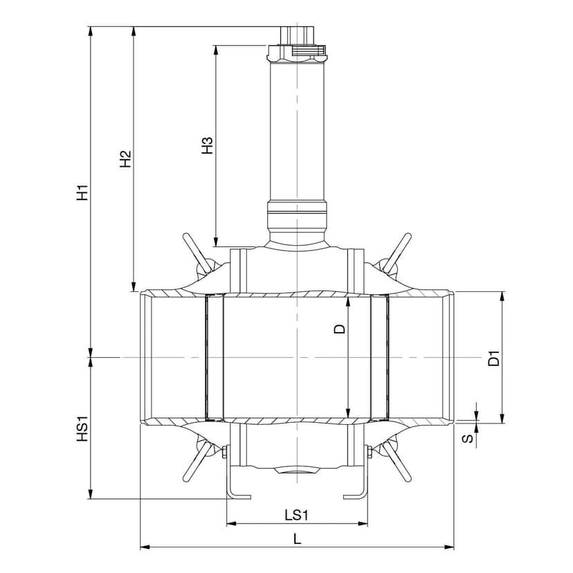
| DN | PN | Produktové číslo | D | D1 | D2 | D4 | D5 | H1 | H2 | H3 | HS1 | L | LS1 | LS2 | S | 6K1 | 6K2 | Kg |
|---|---|---|---|---|---|---|---|---|---|---|---|---|---|---|---|---|---|---|
| 150 | 40 | 157150/40/S/TR | 150.0 | 168.3 | 315 | 98 | 88.9 | 524.0 | 440 | 335 | 200 | 457 | 229 | 160 | 4.5 | 50 | 90 | 127 |
| 200 | 40 | 157200/40/S/TR | 200.0 | 219.1 | 368 | 98 | 88.9 | 550.0 | 440 | 335 | 235 | 521 | 234 | 200 | 5.0 | 50 | 90 | 165 |
| 250 | 40 | 157250/40/S/TR | 250.0 | 273.0 | 440 | 110 | 114.3 | 629.0 | 492 | 377 | 280 | 559 | 250 | 240 | 5.0 | 50 | 90 | 256 |
| 300 | 40 | 157300/40/S/TR | 300.0 | 323.9 | 510 | 110 | 114.3 | 664.0 | 502 | 377 | 314 | 635 | 290 | 280 | 5.6 | 50 | 90 | 376 |
| 350 | 40 | 157350/40/S/TR | 340.0 | 355.6 | 590 | 135 | 139.7 | 645.0 | 467 | 318 | 360 | 762 | 348 | 320 | 6.3 | 50 | 90 | 603 |
| 400 | 40 | 157400/40/S/TR | 385.0 | 406.4 | 640 | 135 | 139.7 | 670.0 | 466 | 318 | 390 | 838 | 362 | 350 | 7.1 | 50 | 90 | 721 |



