
Venttiilihaku
Teräspalloventtiili
101/G-sarja, ulkokierre tulpalla / hitsattava, EN (DIN), supistettuaukkoinen, DN 15-25, PN 40

DN 15-25
Materiaalit
| Runko | DN 15-25: Teräs, P235GH (1.0345) |
| Pallo | DN 15-25: Ruostumaton teräs, X5CrNi18-10 (1.4301) |
| Pallon tiiviste | DN 15-25: PTFE+C |
| Kara | DN 15-25: Ruostumaton teräs, X8CrNiS18-9 (1.4305) |
| Karan tiiviste | DN 15-25: FPM |
Liitospäät
| ulkokierre tulpalla / hitsattava, EN (DIN) |
Operointi
| DN 15-25 | komposiittikahva |
Toimintaolosuhteet
| Lämpötila | -20 °C - +200 °C |
| Tiiveysluokka | A (EN 12266-1) |
Alle -20 °C ota yhteyttä valmistajaan. Alin sallittu ympäristön lämpötila -40 °C.

DN 15-25
vesialue
Höyryalue (ei sallittu)
lyhytaikainen toiminta-alue
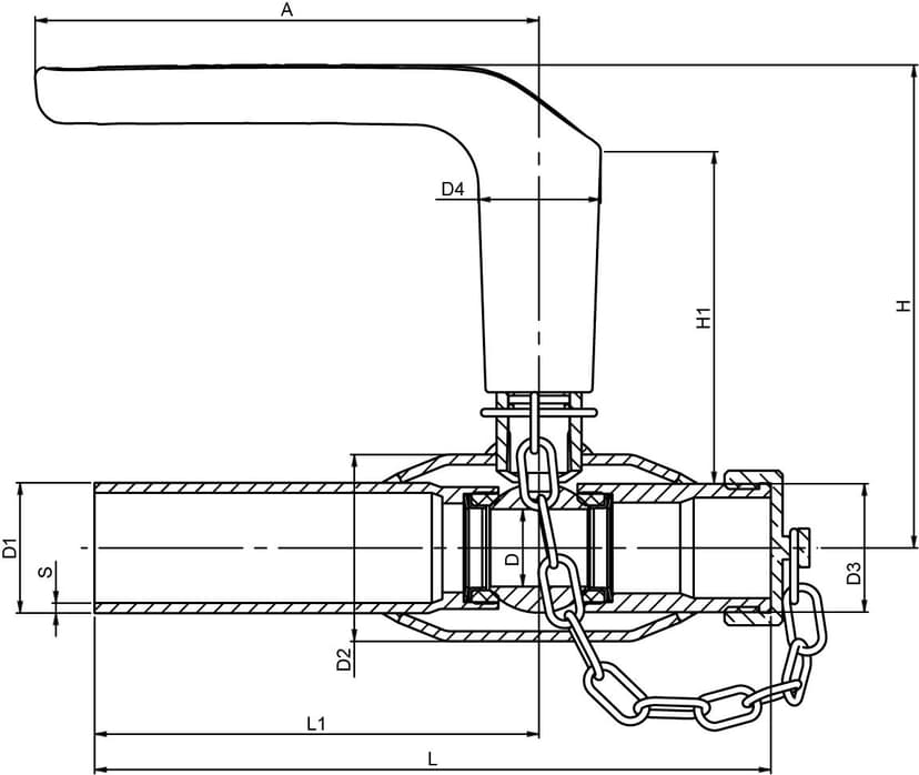
Mitat
DN 15-25

DN 15-25
| DN | PN | Tuotenro. | LVI | A | D | D1 | D2 | D3 | D4 | H | H1 | L | L1 | S | Kg |
|---|---|---|---|---|---|---|---|---|---|---|---|---|---|---|---|
| 15 | 40 | 101015X/G34 | 3755709 | 130.0 | 10.0 | 21.3 | 33.7 | G 3/4 | 32 | 119 | 84.0 | 167 | 115.0 | 2.0 | 0.6 |
| 15 | 40 | 101015X/G | 3755695 | 130.0 | 10.0 | 21.3 | 33.7 | G 1/2 | 32 | 119 | 84.0 | 167 | 115.0 | 2.0 | 0.6 |
| 20 | 40 | 101020X/G | 3755696 | 130.0 | 15.0 | 26.9 | 42.4 | G 3/4 | 32 | 119 | 81.0 | 172 | 115.0 | 2.3 | 0.8 |
| 25 | 40 | 101025X/G | 3755697 | 130.0 | 20.0 | 33.7 | 48.3 | G 1 | 32 | 125 | 84.0 | 175 | 115.0 | 2.6 | 0.9 |
Tuotenumeromuunnokset
| Tuotenro. | EAN | LVI | RSK | NRF |
|---|---|---|---|---|
| 101015X/G34 | 6430079560008 | 3755709 | 5599328 | |
| 101015X/G | 6415837556950 | 3755695 | 5495159 | 5599326 |
| 101020X/G | 6415837556967 | 3755696 | 5495160 | 5599327 |
| 101025X/G | 6415837556974 | 3755697 | 5495161 | 5599329 |





