
Valve Finder
Balancing valve, stainless steel
Series 240, welding / welding, EN (DIN), reduced bore, DN 15-300, PN 25

DN 15-50
Materials
| Body | DN 15-50: Stainless steel, AISI316L (1.4404) DN 65-300: Stainless steel, X2CrNiMo17-12-2 (1.4404) |
| Ball | DN 15-50: Stainless steel, AISI316L (1.4404), flowtube composite DN 65-300: Stainless steel, X2CrNiMo17-12-2 (1.4404) |
| Ball seal | DN 15-300: PTFE+GF |
| Stem | DN 15-50: Stainless steel, AISI316L (1.4404) DN 65-300: Stainless steel, X2CrNiMo17-12-2 (1.4404) |
| Stem seal | DN 15-300: FPM/NBR |
| Measuring block | DN 15-300: Self-sealing, stainless steel, X2CrNiMo17-12-2 (1.4404) / EPDM |
Mounting
| welding / welding, EN (DIN) |
Operation
| DN 15-50 | control knob |
| DN 65-150 | zinc-plated steel handle |
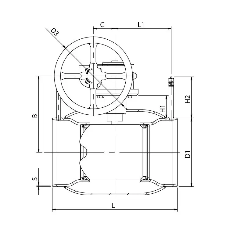
| DN 200-300 | manual gear |
Operating conditions
| Temperature | -20 °C - +200 °C |
| Leakage rate | A (EN 12266-1) |
DN 15–50: -20 °C – +120 °C. Below -20 °C contact manufacturer. Lowest allowed ambient temperature -40 °C.

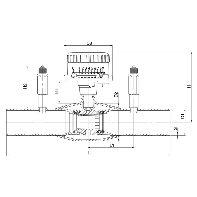
DN 15-50

DN 65-300
water area
Steam area (not allowed)
short-term working area
Dimensions
DN 15-300

DN 15-50

DN 65-100

DN 200-300

DN 200-300
| DN | PN | Product no. | A | B | C | D1 | D2 | D3 | E | H | H1 | H2 | L | L1 | S | Kg |
|---|---|---|---|---|---|---|---|---|---|---|---|---|---|---|---|---|
| 15 | 25 | 240015X | 21.3 | 33.7 | 77 | 101 | 38.5 | 68 | 230 | 73.0 | 2.0 | 0.7 | ||||
| 20 | 25 | 240020X | 26.9 | 42.4 | 77 | 105 | 38.0 | 68 | 230 | 73.0 | 2.0 | 0.8 | ||||
| 25 | 25 | 240025X | 33.7 | 48.3 | 77 | 107 | 37.0 | 68 | 230 | 73.0 | 2.0 | 1.0 | ||||
| 32 | 25 | 240032X | 42.4 | 60.3 | 77 | 111 | 35.0 | 68 | 260 | 73.0 | 2.0 | 1.4 | ||||
| 40 | 25 | 240040X | 48.3 | 70.0 | 77 | 116 | 35.0 | 68 | 260 | 73.0 | 2.6 | 1.9 | ||||
| 50 | 25 | 240050X | 60.3 | 76.1 | 77 | 123 | 39.0 | 68 | 300 | 73.0 | 2.6 | 2.6 | ||||
| 65 | 25 | 240065 | 280.0 | 76.1 | 114.3 | 154 | 52.0 | 82 | 300 | 110.0 | 3.0 | 4.4 | ||||
| 80 | 25 | 240080 | 280.0 | 88.9 | 114.3 | 166 | 58.0 | 82 | 300 | 110.0 | 3.0 | 4.9 | ||||
| 100 | 25 | 240100 | 280.0 | 114.3 | 139.7 | 173 | 52.0 | 82 | 325 | 122.5 | 3.0 | 6.9 | ||||
| 125 | 25 | 240125 | 400.0 | 139.7 | 178.0 | 221 | 68.0 | 82 | 325 | 137.5 | 4.0 | 15.5 | ||||
| 150 | 25 | 240150 | 600.0 | 168.3 | 219.1 | 240 | 74.0 | 82 | 350 | 150.0 | 4.0 | 16.1 | ||||
| 200 | 25 | 240200 | 269.0 | 244 | 69 | 219.1 | 273.0 | 250 | 293 | 72.0 | 132 | 400 | 180.0 | 4.0 | 38.2 | |
| 250 | 25 | 240250 | 301.0 | 294 | 97 | 273.0 | 355.6 | 300 | 345 | 88.0 | 132 | 530 | 225.0 | 4.0 | 73.6 | |
| 300 | 25 | 240300 | 424.0 | 349 | 138 | 323.9 | 457.0 | 600 | 422 | 112.0 | 133 | 550 | 245.0 | 6.1 | 135.0 |
Vexve's balancing valves can be found e.g. from libraries of TA-SCOPE and SmartBalancing measuring devices.
Product number conversions
| Product no. | Old Naval No | EAN | LVI | RSK | NRF |
|---|---|---|---|---|---|
| 240015X | 6415840116424 | 4011642 | 5495243 | 5599421 | |
| 240020X | 6415840116431 | 4011643 | 5495244 | 5599422 | |
| 240025X | 6415840116448 | 4011644 | 5495245 | 5599423 | |
| 240032X | 6415840116455 | 4011645 | 5495246 | 5599424 | |
| 240040X | 6415840116462 | 4011646 | 5495247 | 5599425 | |
| 240050X | 6415840116479 | 4011647 | 5495248 | 5599426 | |
| 240065 | 266410V | 6415840183877 | 4018387 | 4891347 | 5599234 |
| 240080 | 266411V | 6415840183884 | 4018388 | 4891348 | 5599235 |
| 240100 | 266412V | 6415840183891 | 4018389 | 4891349 | 5599236 |
| 240125 | 266413V | 6415840183907 | 4018390 | 4891350 | 5599237 |
| 240150 | 266414V | 6415840183914 | 4018391 | 4891351 | 5599238 |
| 240200 | 266436V | 6415840183921 | 4018392 | 4891352 | 5599239 |
| 240250 | 266437V | 6415840183938 | 4018393 | 4500417 | 5599241 |
| 240300 |
Technical documentation for the product
Certificates
Operation manuals

Balancing valves, coupling dimensions
PDF
Kv Value Chart Of Vexve Floating Ball Valves
PDF
Balancing valves adjustment instructions DN 15–150
PDF
Balancing valves adjustment Instructions DN 200–400
PDF
Balancing valves, steel and stainless steel Installation, operation and maintenance manual
PDF
Vexve Ball Valves Operating Torques EN
PDF
X-series valves, coupling dimensions
PDF
Vexve X shut-off and balancing valves instructions for installation, operation, adjustment and maintenance
PDF